iletişim / contact

işler / works

endüstriyel /

industrial

KALIBRE BORU A.Ş.

2009 / Izmit, Turkey

500 m²,  İnşa edildi / Completed

Tasarım+Kontrol / Design + Cons. management

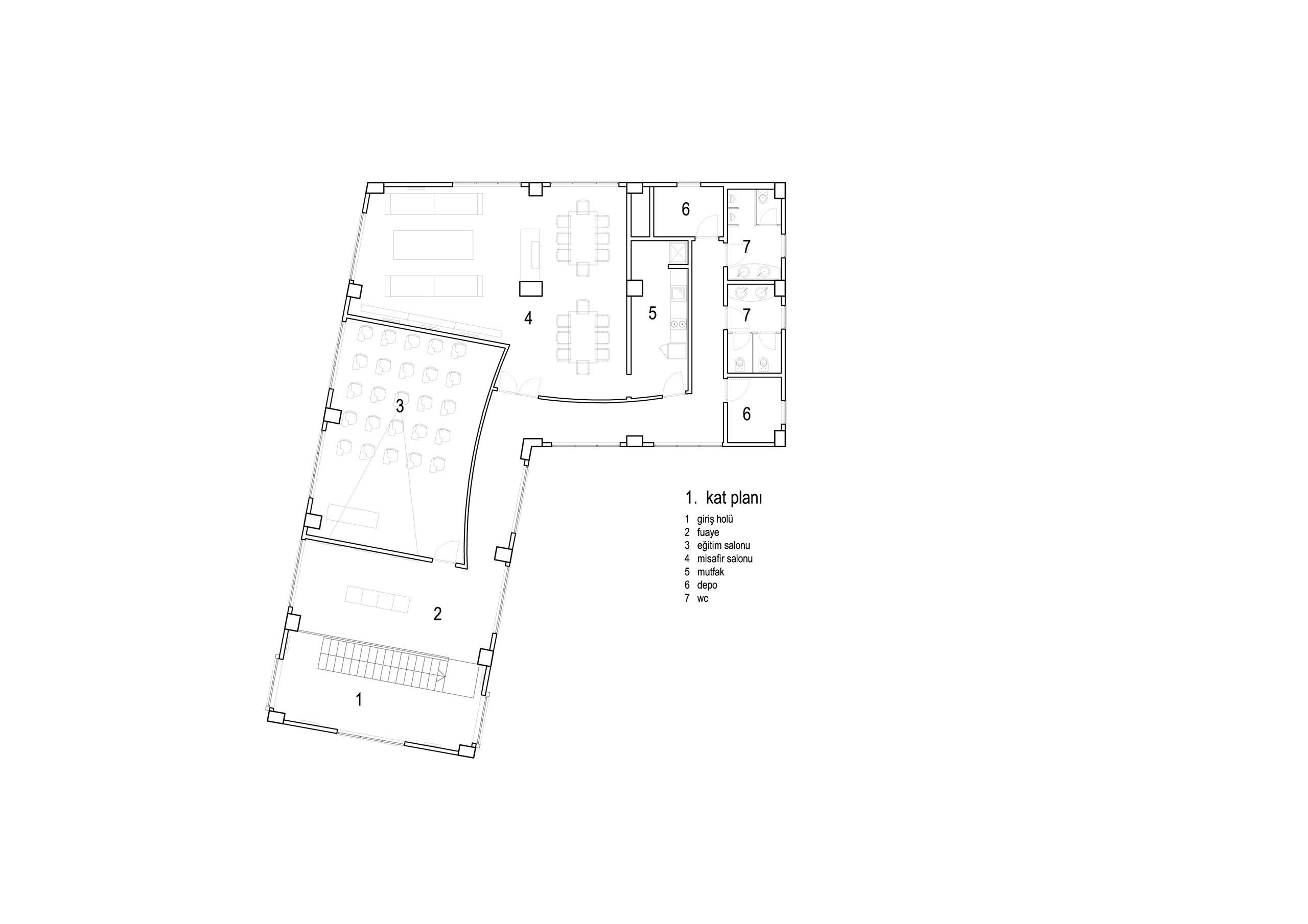
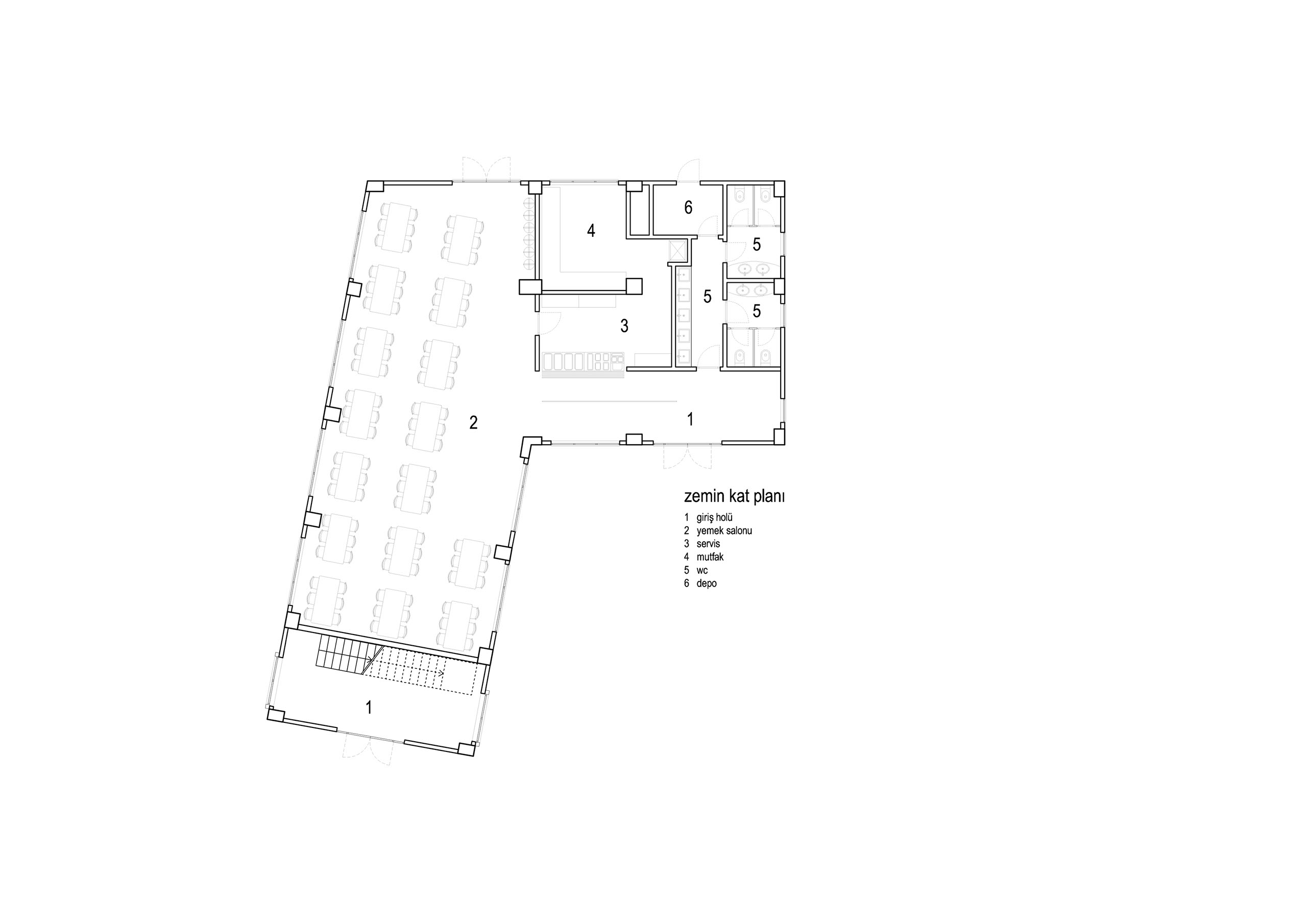
KALİBRE BORU SOSYAL TESİS BİNASI

KALİBRE BORU SOCIAL FACILITY BUILDING

ara mimarlık 2023

all rights reserved

 

designed by ara