iletişim / contact

işler / works

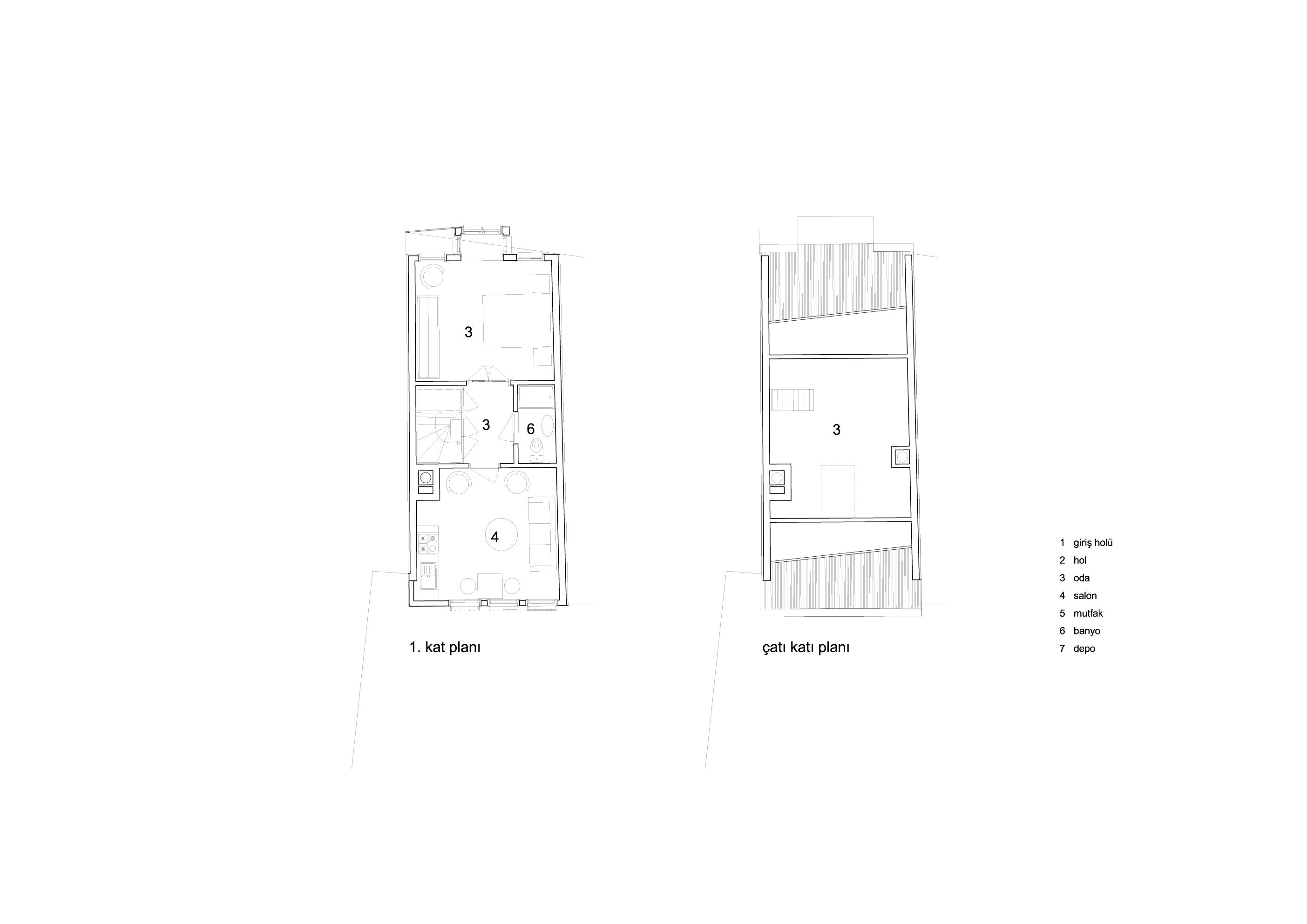
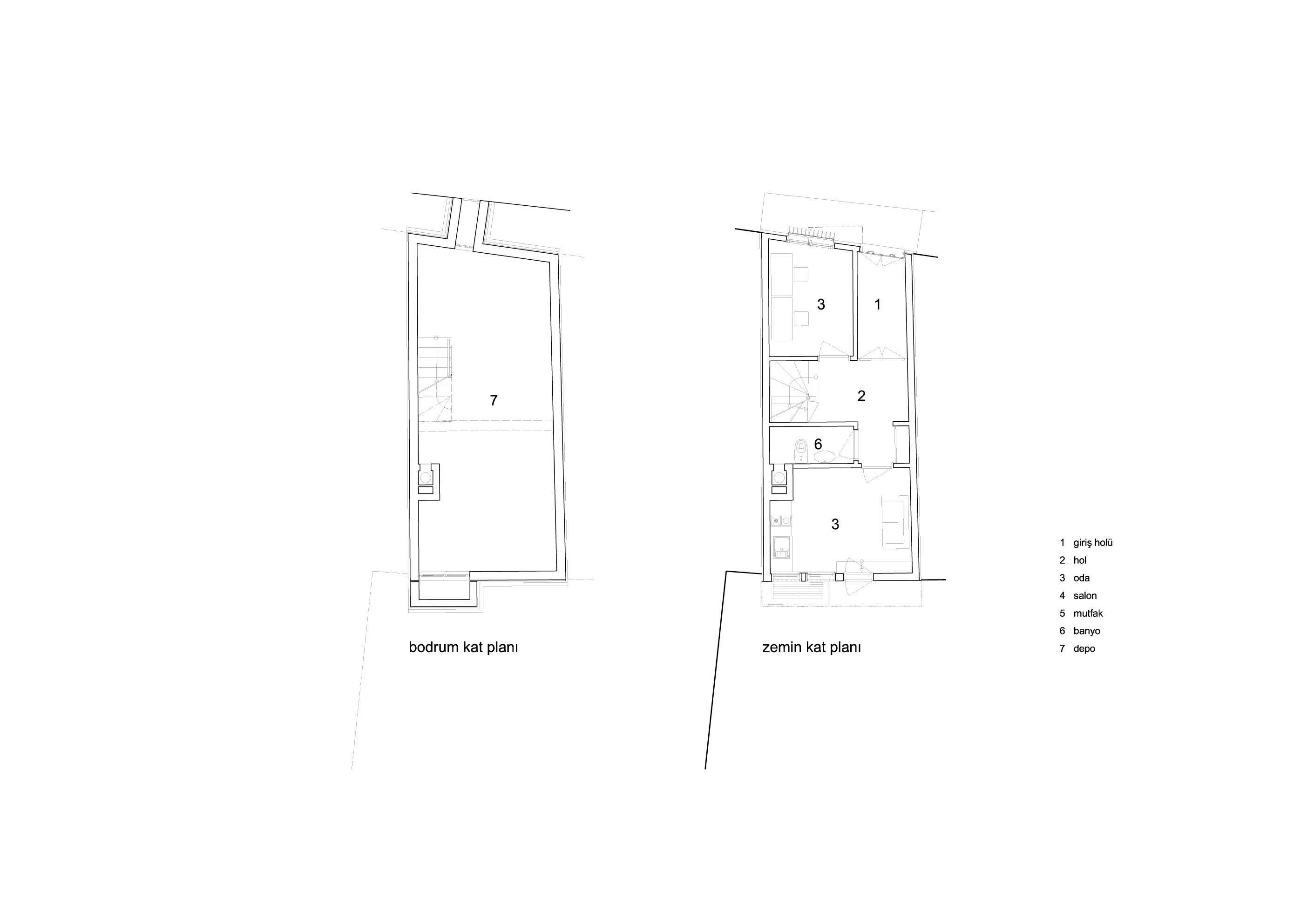
eski eser /

renovation

B.B.

2008-2010 / Istanbul, Turkey

160 m², İnşa edildi / Completed

Restorasyon Projesi+Kontrol / Restoration Projects + Cons. Management

B.B. EVİ

B.B. HOUSE

ara mimarlık 2023

all rights reserved

 

designed by ara