iletişim / contact

işler / works

eski eser /

renovation

B&İ ÖZTÜRK

2011-2012 / Istanbul, Turkey

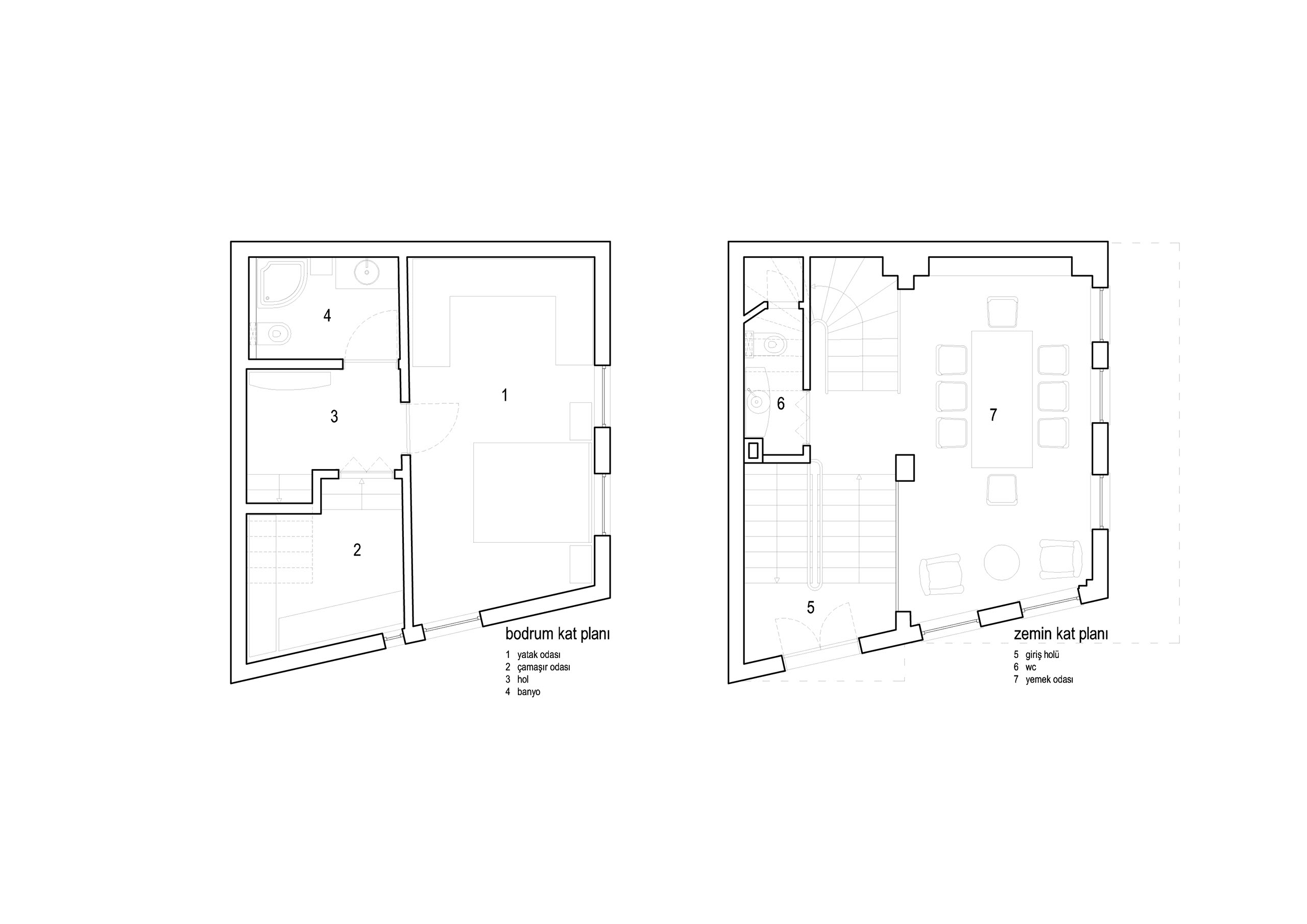
165 m², İnşa Edildi / Completed

İç mekan tasarımı+Uygulama / Interior design+Construction

ÖZTÜRK EVİ

OZTURK HOUSE

ara mimarlık 2023

all rights reserved

 

designed by ara